Virtual Tour

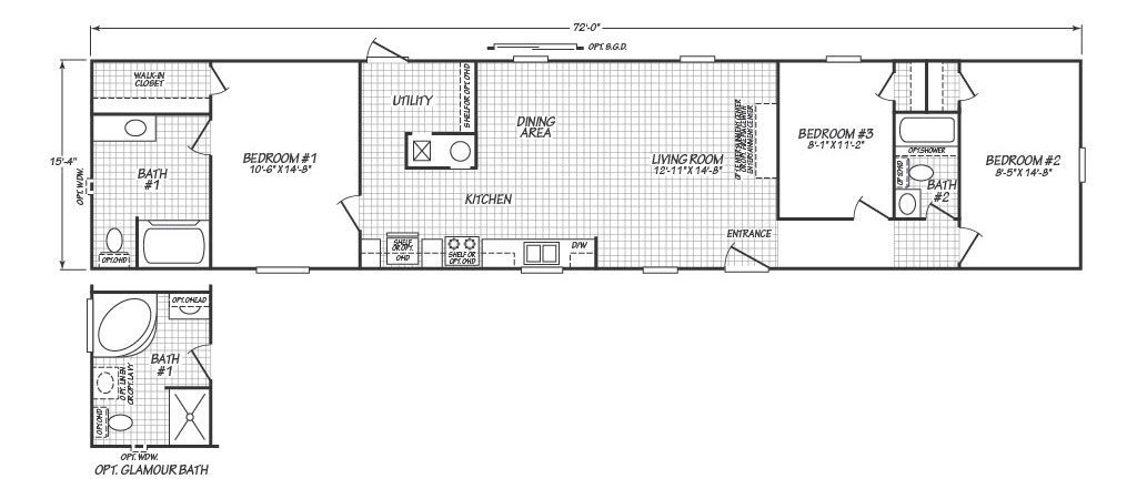
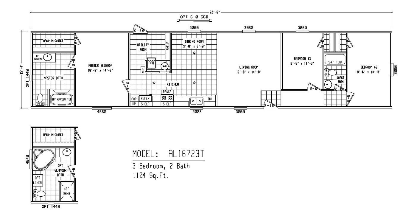
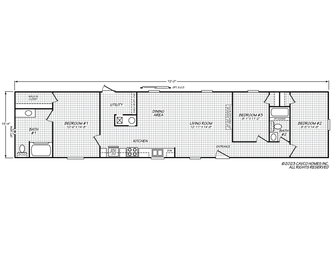
Welcome to your new Texas Single-wide by Cavco Homes The “Alamo Lite Single-Section 16723T“. The Alamo Lite Single-Section 16723T has 3 Bedrooms, 2 bathrooms and spans 1104 square feet, offering a comfortable and versatile living space. With a width of 16 feet and a length of 76 feet, this home provides a balanced layout suitable for various locations and lifestyles.

Bedrooms

3

Bathrooms

2

SQFT

1104

Width

16

Length

76

Condition

Home Type

Manufacturer

2025

Year Built

OUR HAPPY MOBILE HOME CUSTOMERS